
Metallbau Planungsbüro
Planung, Ausschreibung & Projektleitung für Metallbau
Das Metallbau Planungsbüro bietet durchdachte Planungslösungen für Metallbauer, Architekten und Bauherren – von der ersten Skizze bis zur fertigen Montageunterlage.
Wir denken mit. Wir denken weiter. Damit aus Ideen echte Lösungen werden. Metallbauplanung, Metallbauplaner Thurgau, Metallbauplanung Schweiz, Fassadenplaner, Ausschreibungen Metallbau Schweiz, Projektleiter
Metallbauer & Fassadenbauer
🔧 Planung auslagern, Kontrolle behalten.
Ich kümmere mich um Technik, Unterlagen & Machbarkeit🛠️ Technik, die entlastet. Planung, die funktioniert.- Planung von Metallbauprojekten (2D/3D CAD)
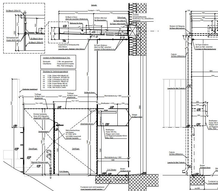
- Handskizzen & Detailzeichnungen nach Aufmass
- Produktions- & Montageunterlagen inkl. Stücklisten
- Kalkulationen & technische Varianten
- Unterstützung bei Ausschreibungen & Unternehmervarianten
- Technische Optimierung von Abläufen & Konstruktionen
- Externe Projektleitung & Ausführungsüberwachung
Metallbauplaner, Metallbauplanung, Metallbau Planung, externer Planer, Projektleiter, Planer, Zeichner, Konstrukteur


Architekten & Bauherren
🧱 Sie entwerfen – ich unterstütze technisch
Damit Ihre Idee Realität wird: machbar, präzise und verständlich umgesetzt – für GU, Bauherren, Behörden und Unternehmer🎯 Technisches Fachwissen, das Ihr Entwurf verdient
- Beratung zu Ausführung & Machbarkeit
- Ausschreibungstexte & Leistungsverzeichnisse (BPK-konform)
- Mengengerüste & technische Detailpläne
- Projektunterstützung bei Wettbewerben & GU-Angeboten
- Schnittstelle zu Metallbauern & Fachplanern
- Ausführungs- & Qualitätsüberwachung
- Variantenstudien für Wirtschaftlichkeit & Umsetzbarkeit
Ausschreibungen Metallbau, Experte Metallbau, Metallbauplaner, Metallbauplanung, Metallbau Planer Extern
Über mich
📐 Technik verstehen. Praxis leben. Klarheit schaffen.
Marco Bischof – Planer, Praktiker und Fachmann im Metallbau.
Mit über 20 Jahren Erfahrung setze ich mich für Betriebe, Architekten und Bauherren ein, um Ideen präzise in technische Lösungen zu übersetzen.
Ob Detailplanung, Ausschreibung oder die Ausarbeitung technisch und wirtschaftlich sinnvoller Unternehmerlösungen:
Ich denke mit, ich denke weiter – und bringe Ihre Vision sicher auf den Weg.🎓 Ausbildungen & Qualifikationen:
- Executive MBA
- Ing. EurEta
- Dipl. Techniker HF Metallbau SMT (mit Auszeichnung)
- Eidg. dipl. Metallbaumeister
- Metallbau-Werkstattleiter FA
- EN1090 / Brandschutzgeschult / Schweissaufsicht
-Prüfungsexperte QV Metallbau
-Mitarbeit Normengremien der SIA etc.


Kontakt
Interesse geweckt? Na denn – let’s go.
Ob konkrete Anfrage oder erste Idee: Lassen Sie uns unverbindlich sprechen – per Telefon, E-Mail oder Video-Call.🟢 Telefon: +41 78 343 16 16
📧 E-Mail: [email protected]
📍 Adresse: Sangiweg 16c, 8555 Müllheim, Schweiz©Metallbau Planungsbüro
Metallbauplanung Schweiz, Metallbau Planungsbüro, Planer Metallbau, Metallbauplaner, Metallbauplanung, externer Planer, externer Projektleiter, Metallbau Ausschreibungen, Metallbau Planungsbüro Ostschweiz, Metallbau
Referenzen
C & A Flagshipstore, Bahnhofstrasse, Zürich
Glasgeländer und Rauchschutzschürzen punktgehalten an Stahlunterkonstruktion Ausschreibungen Metallbau, BKP 272 allg. Metallbau, Experte Metallbau, Kalkulationen Metallbau, Metallbauplaner, Metallbauplanung, Metallbau Planer Extern


Referenzen
Saumackerstrasse 102, Zürich
Balkonanlagen mit Betonbodenplatten, Entwässerungen, Schwellenausbildungen, Geländern und Trennwänden
Ausschreibungen Metallbau, BKP 272 allg. Metallbau, Experte Metallbau, Kalkulationen Metallbau, Metallbauplaner, Metallbauplanung, Metallbau Planer Extern
Referenzen
Steinmüri, Pfäffikon
Balkongeländer, Balkonverglasungen (Schiebeelemente), Randabschlüsse zum Abdichten, Innengeländer, Haupteingangstüre, Handläufe etc. Ausschreibungen Metallbau, BKP 272 allg. Metallbau, Experte Metallbau, Kalkulationen Metallbau, Metallbauplaner, Metallbauplanung, Metallbau Planer Extern


Referenzen
Alterszentrum, Effretikon
Glas - Schuppenfassade, Blecheinfassungen um Fenster (Collinal), kleine Balkone, Vordach, Geländer, div. Blechverkleidungen
Fassadenbau, BKP 272 allg. Metallbau, Experte Metallbau, Kalkulationen Metallbau, Metallbauplaner, Metallbauplanung, Metallbau Planer Extern
Referenzen
Zürcher Kantonalbank, Neue Hard 9, Zürich
Technik-Kanal übere mehrere Geschosse und Gebäude. Stahl tragkonstruktion, Blechverkleidung, Verteilhäuschen etc. Ausschreibungen Metallbau, BKP 272 allg. Metallbau, Experte Metallbau, Kalkulationen Metallbau, Metallbauplaner, Metallbauplanung, Metallbau Planer Extern


Referenzen
Dornenstrasse, Wallisellen
Streckmetallgeländer an Balkonen und Terrassen, Einhausungen, Begrünungen über Garageneinfahrt, Handläufe etc.
Ausschreibungen Metallbau, BKP 272 allg. Metallbau, Experte Metallbau, Kalkulationen Metallbau, Metallbauplaner, Metallbauplanung, Metallbau Planer Extern
Referenzen
Wydlerweg, Zürich
Balkongeländer, Balkonabschlüsse, Reduit-Einhausungen, Handläufe etc. Ausschreibungen Metallbau, BKP 272 allg. Metallbau, Experte Metallbau, Kalkulationen Metallbau, Metallbauplaner, Metallbauplanung, Metallbau Planer Extern

